Soho Works LA
Client: Soho House & Co.
Location: Los Angeles, CA USA
Size: 32,100 s.f.
Soho House was founded in London in 1995 as a home from home for people working in creative fields. There are active Houses located in the UK, Berlin, Istanbul, Barcelona, New York, West Hollywood, Miami, Chicago and Toronto.
The majority of Soho House members work in traditional creative industries, with the film, fashion, advertising, music, art and media sectors, among others, heavily represented.
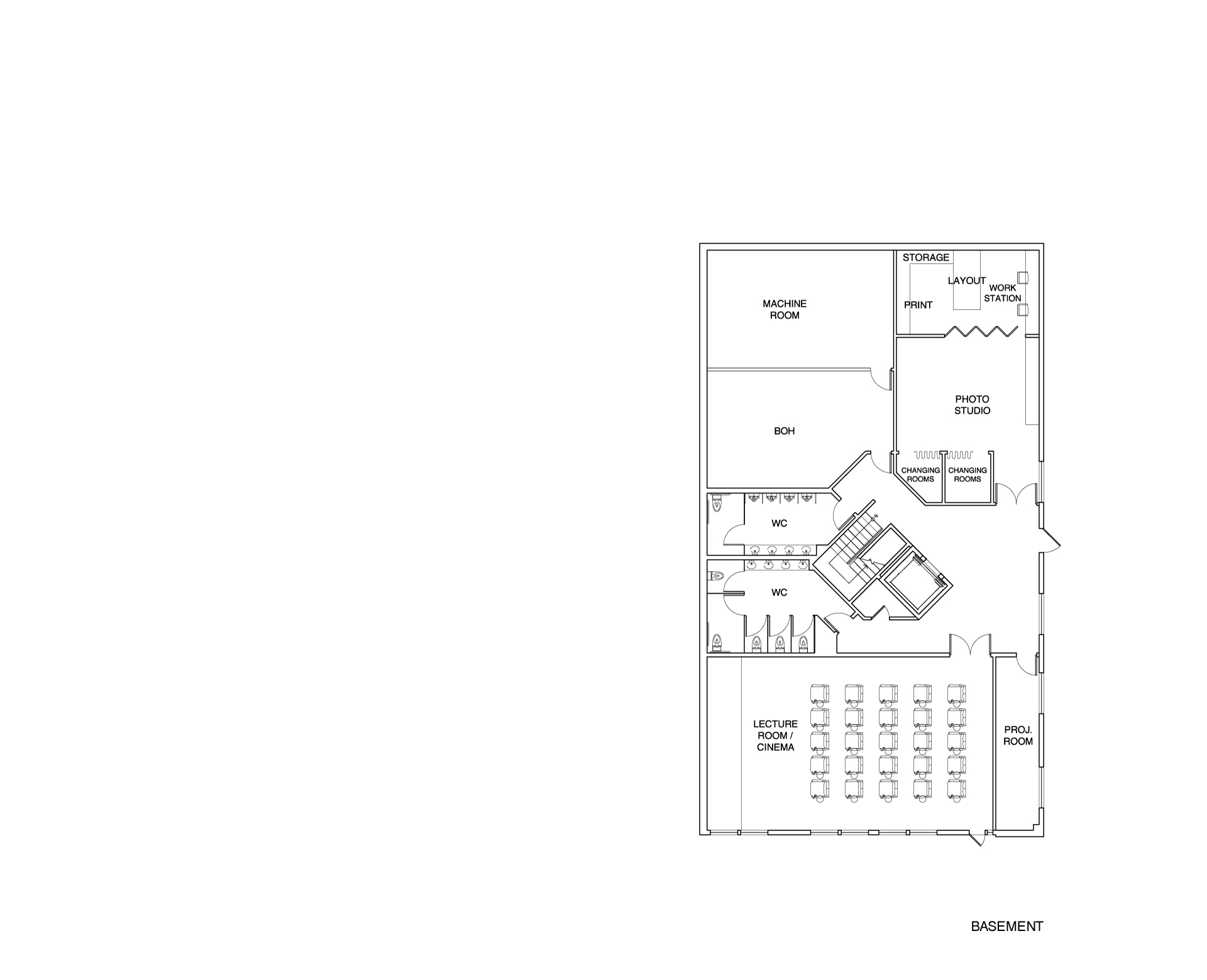
Soho Works is an international network of round-the-clock work spaces from Soho House & Co, designed and equipped to support a membership of individuals and businesses in the creative industries.
As with the other Soho House projects in Los Angeles, Undisclosable was brought on in a design assist capacity until Soho House & Co. built up their internal design team. Our scope was predominantly covered programming and space planning.



